Operativ Construct

Constructor case timberframe si case din busteni, grinzi lamelare si mobilier gradina

Tara / Limba
Romania / Româneste
  • Romania / Româneste
  • Switzerland / English Switzerland / Français Switzerland / Deutsch
  • United Kingdom / English
  • France / Français
  • Germany / German
  • International / English
  • Acasa
  • Case Lemn
    • Case Busteni
    • Case Beam & Post
    • Case Timberframe
    • Pavilioane, Terase si Mobilier de gradina
  • Produse Lemn
    • Grinzi Lamelare
    • Profile Lemn
    • Lambriuri
    • Dusumea
    • Decking
  • Galerie
  • Planuri si Proiecte
    • Proiecte case busteni
    • Proiecte case timerframe
    • Proiectare Sema
    • Oferta proiectare
    • Consultanta proiectare case lemn
  • Companie
    • Despre Companie
    • Parteneri
    • Certificate
  • Info
    • Cum cumpar
    • Faze constructie
    • Case Eco avantajele caselor de lemn
    • Eficienta energetica a caselor de lemn
    • Trend case passive si lemn in Europa
    • Literatura specialitate
  • Oferte
    • Oferte Curente
  • Contact
  • Case Busteni
  • Case Timberframe
  • Mobilier Gradina
  • Grinzi Lamelare
  • Profile Lemn
  • Lambriuri
  • Dusumea & Decking
  • Proiecte Case Busteni
  • Proiecte Case Timberframe


Galerie

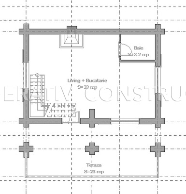
Zolt

Inapoi »
Zolt
info
click pe imaginile de mai sus pentru a mari

 

Inapoi »


Operativ Construct
  • © 2026 Operativ Construct SRL   |
  • Acasa
  • Termeni Legali
  • Contact
Case eco, Sema soft, Weining